1
| 下記、赤枠部の低流動出荷先・低流動アイテムをケース自動倉庫に入れ、出荷先単位に混在出荷 |
![]() |
![]() |
| ケース荷姿と格納数 |
![]() |
格納ケース数の計算は、縦横高さが150-600までのケースなら全て格納できるため、一定の条件による計算になる。 左記表の条件で1基(2列*15間口*13段)の格納量は2000ケースになる。 左記表のTera設定を変更して格納量を変化を確認いただきたい。 |
| ケース自動倉庫の動作 |
![]() |
入庫ケースを庫内コンベヤから移載し、 棚間口へ搬送し、棚に格納 出庫ケースがある棚間口に移動、ケースを移載、 搬送して棚内コンベヤケースを降ろし、 垂直搬送機により棚外出庫コンベヤに移載 上記入出庫を50-60回/時間行うことができる。 |
| 平面レイアウト |

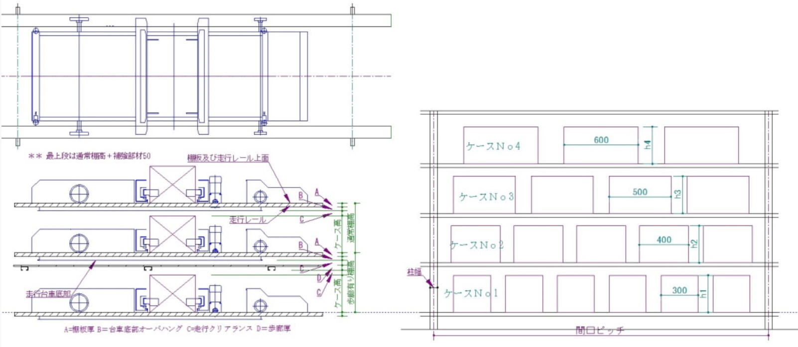
| 走行台車と棚間口高及び間口幅とケース保管数 間口ピッチ2710mm、間口当たり保管ケース数 300mm幅ケースは6ケース、400mm幅ケースは5ケース、500mm幅ケースは4ケース、600mm幅ケースは3ケース |
![]() |
| 写真見出し |
![]() |
走行台車はレールより下方にオーバハングする構造、歩廊有間口と歩廊無し間口の寸法取り合いに注意。 Tera設定を変更可 |